 
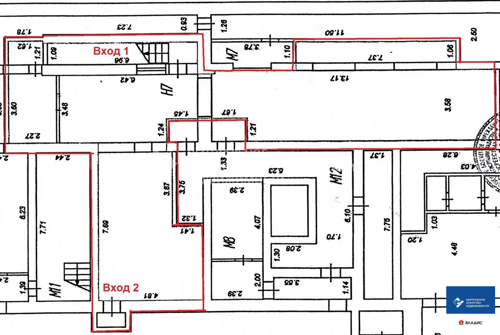
										Арт.Отличное предложение для желающих вложить средства, для получения по факту пассивного доходаПродается помещение в свежем доме 2015 года постройки. Помещение на 1-этаже кирпичного дома площадью 108 кв.м.Федеральный арендатор Бристоль Договор аренды заключен до 2030 года. Арендный платеж на сегодня составляет в месяц + оплата коммунальных платежей. В договоре прописана возможность увеличения арендной платы раз в год. Помещение на 1 линии, рядом остановка ООТ, Парк 41-го мкрИщете отличный беспроблемный вариант вложения денег, который будет долгое время приносить пассивный доход - рассмотрите наше предложение1 взрослый собственник, никаких обременений (кроме аренды), вся сумма в договоре Для получения более подробной информации - пишите, а лучше звоните
 
								 
											
                                                                         
											
                                                                         
											
                                                                         
											
                                                                        Оставьте заявку, и наши риэлторы подберут торговое помещение в районе Кирова
