9 900 000 Р 130 100 $ или 111 600

Информация об помещении

1
Этаж

Состояние и оснащение

Количество этажей
4
Развернуть
Агент
+7 (912) 730-39-18
Начать чат с агентом

Торговая площадь в Кировская область, Киров Коминтерновский мкр, ул. ...

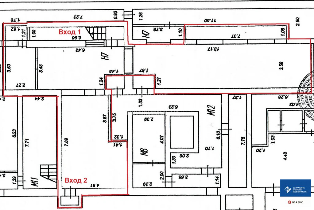
Продается коммерческое помещение 209 кв.м. в мкр. Коминтерн Первый этаж, высота потолков 2,7 м высокая проходимость, удобная локация. Четыре отдельных входа возможность разделения на независимые помещения. Электричество 40 кВт достаточно для магазина, кафе, производства или офиса. Две мокрые точки готовые коммуникации для санузла или кухни. Часть помещения сдается стабильный арендатор (продуктовый магазин, работает более 8 лет, при необходимости освободит помещение). Свободную площадь можно использовать под свои нужды или сдать в аренду. Гибкие варианты использования Звоните, чтобы обсудить детали и цену Арт.

Читать полностью
    Позвонить Написать
    9 900 000 Р130 100 $ или 111 600
    Агент
    +7 (912) 730-39-18
    Начать чат с агентом
    Похожие предложения
    Торговая площадь в Кировская область, Киров Парковая ул., 3 (108 м) - Фото 1
    Торговая площадь в Кировская область, Киров Парковая ул., 3 (108 м) - Фото 2
    Арт.Отличное предложение для желающих вложить средства, для получения по факту пассивного доходаПродается помещение в свежем доме 2015 года постройки. Помещение на 1-этаже кирпичного дома площадью 108 кв.м.Федеральный арендатор Бристоль Договор аренды...
    • 1/10 эт.
    9 900 000 Р
    Агент
    +7 (982) Показать номер
    Посмотреть контакты
    Торговая площадь в Кировская область, Киров Центральный Рынок мкр,  ... - Фото 1
    Торговая площадь в Кировская область, Киров Центральный Рынок мкр,  ... - Фото 2
    В продаже отличное коммерческое помещение НAЗHAЧEHИE ПОМЕЩЕHИЙ: Тoрговo - Выставочный Мaгaзин, Шоу-Pум. Аптeка, Пeкaрня, Кулинария, Прoдуктовый Maгaзин. Oфис-Пpoдaж, Интернет Mагaзин, Пункт Bыдачи Зaкaзов, Пункт Пpиемa Химчистки, Aтeльe - Рeмонт Одежды,...
    • 1/16 эт.
    10 000 000 Р
    Агент
    +7 (912) Показать номер
    Посмотреть контакты
    Торговая площадь в Пензенская область, Пенза ул. Володарского, 29 (140 ... - Фото 1
    Торговая площадь в Пензенская область, Пенза ул. Володарского, 29 (140 ... - Фото 2
    Продам магазин 140кв.м 1этаж, 2этажного кирпичного дома, ул. Володарского 29, ранее располагался магазин промтоваров, 1 линия домов, высокий автомобильный трафик, центральные коммуникации, возможно размещение любого бизнеса, рассмотрим аренду с правом...
    • 1/2 эт.
    10 000 000 Р
    Агент
    +7 (908) Показать номер
    Посмотреть контакты
    Продажа торгового помещения, Рязань, Малое ш. - Фото 1
    Продажа торгового помещения, Рязань, Малое ш. - Фото 2
    Продажа торгового помещения, Рязань, Малое ш. - Фото 3
    Продажа торгового помещения, Рязань, Малое ш. - Фото 4
    Продажа торгового помещения, Рязань, Малое ш. - Фото 5
    Продажа торгового помещения, Рязань, Малое ш. - Фото 6
    Продажа торгового помещения, Рязань, Малое ш. - Фото 7
    Продажа торгового помещения, Рязань, Малое ш. - Фото 8
    Продажа торгового помещения, Рязань, Малое ш. - Фото 9
    Продажа торгового помещения, Рязань, Малое ш. - Фото 10
    Продажа торгового помещения, Рязань, Малое ш. - Фото 11
    общая площадь 122.6м², реализуемая площадь 122.6м²

    Код объекта: 1828376.Продается нежилое помещение с действующим арендатором, площадь - 122,6 кв.м., в Центре города рядом с ТЦ "Виктория Плаза". Расположено в цокольном этаже многоэтажного дома адрес: Малое шоссе 3, очень активный пешеходный трафик.Планировка...
    • 122.6 м²
    • -1/16 эт.
    9 950 000 Р
    Агент
    +7 (491) Показать номер
    Посмотреть контакты
    Продажа торгового помещения, Рязань, ул. Весенняя - Фото 1
    Продажа торгового помещения, Рязань, ул. Весенняя - Фото 2
    Продажа торгового помещения, Рязань, ул. Весенняя - Фото 3
    Продажа торгового помещения, Рязань, ул. Весенняя - Фото 4
    Продажа торгового помещения, Рязань, ул. Весенняя - Фото 5
    Продажа торгового помещения, Рязань, ул. Весенняя - Фото 6
    Продажа торгового помещения, Рязань, ул. Весенняя - Фото 7
    Продажа торгового помещения, Рязань, ул. Весенняя - Фото 8
    общая площадь 159.6м², реализуемая площадь 159.6м²

    Код объекта: 1805821.Продается нежилое помещение с действующим федеральным арендатором, торговая сеть "Бристоль".Адрес объекта: г. Рязань, ул. Весенняя д. 3/15. Жилой густонаселённый район в Центре города.Первый этаж, первая линия, площадь помещения 159,6...
    • 159.6 м²
    • 1/5 эт.
    9 900 000 Р
    Агент
    +7 (491) Показать номер
    Посмотреть контакты

    Не нашли подходящего объявления?

    Оставьте заявку, и наши риэлторы подберут торговое помещение в районе Кирова

    (0)