Россия, Кировская область, Киров, улица 4-й Пятилетки, 53
20 481 500 Р 254 100 $ или 218 600

Информация об помещении

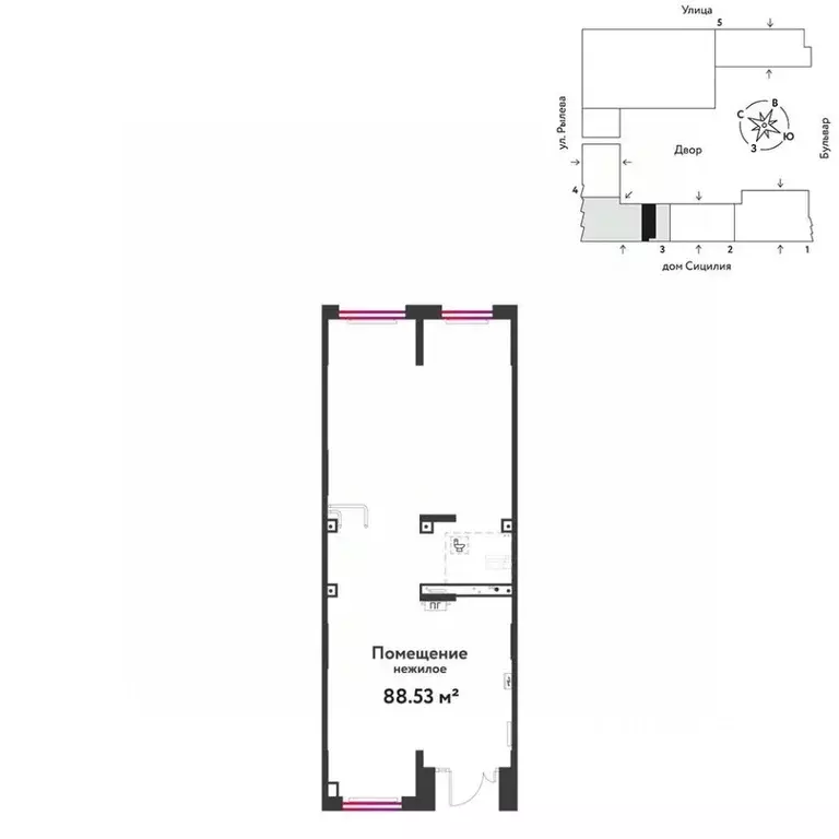
248.2 м2
Площадь
1
Этаж

Состояние и оснащение

Количество этажей
1
Развернуть
Окулов Андрей Иванович
PRO
+7 (922) 117-66-67
Профессионал AFY.ru с 2013 г.
Начать чат с агентом

Продажа торгового помещения, Киров, улица 4-й Пятилетки

.
Магазин, назначение: нежилое здание, количество этажей: 1, общая площадь 248,2 кв. м.

Земельный участок, площадь 1 124 кв. м, категория земель: земли населенных пунктов, разрешенное использование: для эксплуатации объекта (здание магазина).

Адрес: Кировская область, г. Киров, ул. 4-й Пятилетки, д. 53.

Читать полностью

    Для того, чтобы купить торговое помещение площадью 248 кв. метров по адресу: Киров, улица 4-й Пятилетки, 53, позвоните по телефону +7 (922) 117-66-67. Торопитесь! Объявление №800825478 о продаже торгового помещения площадью 248 кв. метров опубликовано Вчера.

    Позвонить Написать
    20 481 500 Р254 100 $ или 218 600
    Окулов Андрей Иванович
    PRO
    +7 (922) 117-66-67
    Профессионал AFY.ru с 2013 г.
    Начать чат с агентом
    Похожие предложения
    Торговая площадь в Свердловская область, Екатеринбург ул. Григория ... - Фото 1
    Торговая площадь в Свердловская область, Екатеринбург ул. Григория ... - Фото 2
    ПРОДАЕТСЯ ТОРГОВОЕ ПОМЕЩЕНИЕ общей площадью 93 кв. м. с НДСБез комиссии для покупателей- Расположено в новом доме в микрорайоне Широкая речка;- Хорошая транспортная доступность, рядом остановки общественного транспорта;- Развитая инфраструктура, в окружении...
    • 1/8 эт.
    19 000 000 Р
    Агент
    +7 (912) Показать номер
    Посмотреть контакты
    Торговая площадь в Тюменская область, Тюмень ДОК мкр, ул. Ярославская, ... - Фото 1
    Торговая площадь в Тюменская область, Тюмень ДОК мкр, ул. Ярославская, ... - Фото 2
    --------------------Продажа торговая площадь, ДОК, Тюмень, Ярославская, 9, корпус 1--------------------
    • 1/24 эт.
    19 224 000 Р
    Агент
    +7 (919) Показать номер
    Посмотреть контакты
    Торговая площадь в Тюменская область, Тюмень ДОК мкр, ул. Ярославская, ... - Фото 1
    Торговая площадь в Тюменская область, Тюмень ДОК мкр, ул. Ярославская, ... - Фото 2
    --------------------Продажа торговая площадь, ДОК, Тюмень, Ярославская, 9, корпус 1--------------------
    • 1/24 эт.
    19 476 000 Р
    Агент
    +7 (919) Показать номер
    Посмотреть контакты
    Торговая площадь в Тюменская область, Тюмень ул. Мельникайте, 42к1 (90 ... - Фото 1
    Торговая площадь в Тюменская область, Тюмень ул. Мельникайте, 42к1 (90 ... - Фото 2
    --------------------Продажа торговая площадь, Тюменская область, Тюмень, Мельникайте, 42 корпус 1--------------------
    • 1/20 эт.
    19 099 000 Р
    Агент
    +7 (919) Показать номер
    Посмотреть контакты
    Торговая площадь в Тюменская область, Тюмень ул. Мельникайте, 42к1 (69 ... - Фото 1
    Торговая площадь в Тюменская область, Тюмень ул. Мельникайте, 42к1 (69 ... - Фото 2
    --------------------Продажа торговая площадь, Тюменская область, Тюмень, Мельникайте, 42 корпус 1--------------------
    • 1/20 эт.
    19 769 000 Р
    Агент
    +7 (919) Показать номер
    Посмотреть контакты

    Не нашли подходящего объявления?

    Оставьте заявку, и наши риэлторы подберут торговое помещение в районе Кирова

    (0)