62 808 738 Р 775 300 $ или 658 800

Состояние и оснащение

Количество этажей
5
Развернуть
Агент
ГИС Торги
+7 (912) 710-93-98
Начать чат с агентом

Помещение свободного назначения в Кировская область, Киров Октябрьский ...

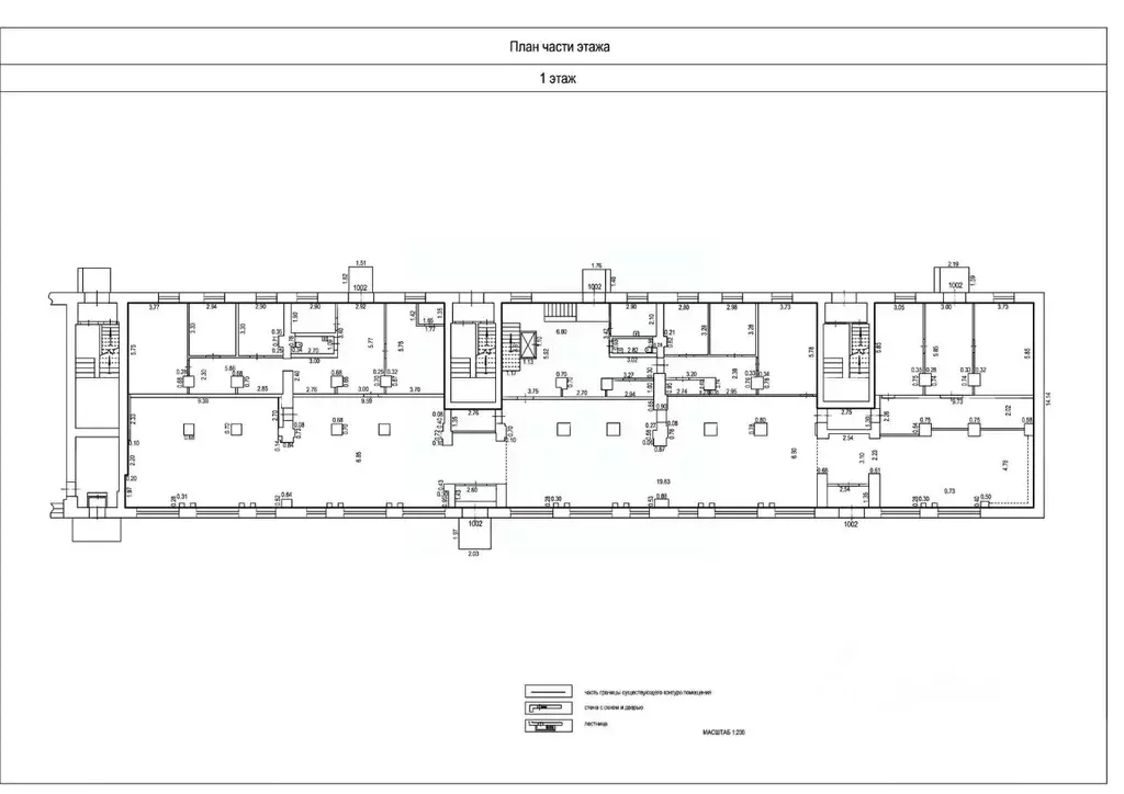
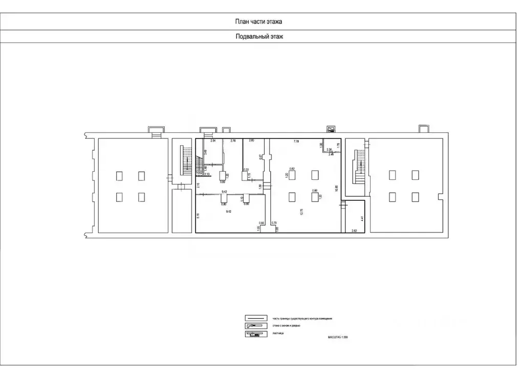
Данные получены с сайта ГИС Торги.нежилое помещение с кадастровым номером 43:40:000317:асположено в подвале и на первом этаже, общая площадь составляет 874,1 кв. метра, год постройки здания 1960; сплит-система (блок внутренний BALLU BLC_CF/in-24HN1_18Y, блок внешний BALLU BLC_O/out-24HN1_18Y), год ввода в эксплуатацию 2014, реестровый номер 25:074266; кондиционер напольно-потолочный QUATTROCLIMA QVFA/QN-124UA, год ввода в эксплуатацию 2014, реестровый номер 25:074265.

Читать полностью
    Позвонить Написать
    62 808 738 Р775 300 $ или 658 800
    Агент
    ГИС Торги
    +7 (912) 710-93-98
    Начать чат с агентом
    Похожие предложения
    Продажа ПСН, Ростов-на-Дону, ул. Каяни - Фото 1
    Продажа ПСН, Ростов-на-Дону, ул. Каяни - Фото 2
    общая площадь 179м², полезная площадь 179м²

    Жилой комплекс Шолохов. Фасад на ул.Каяни. Коммерческие помещения в развлекательно-прогулочной локации в зоне интенсивного автомобильного и пешеходного трафика: - 179 кв.метров - - 185 кв.метров - - 201 кв.метр - - 179 кв.метров - - 185 кв.метров...
    • 179 м²
    62 500 000 Р
    Агент
    +7 (918) Показать номер
    Агентство
    Маралин
    Посмотреть контакты
    Продажа ПСН, м. Алексеевская, ул. Годовикова - Фото 1
    Продажа ПСН, м. Алексеевская, ул. Годовикова - Фото 2
    Продажа ПСН, м. Алексеевская, ул. Годовикова - Фото 3
    Продажа ПСН, м. Алексеевская, ул. Годовикова - Фото 4
    Продажа ПСН, м. Алексеевская, ул. Годовикова - Фото 5
    Продажа ПСН, м. Алексеевская, ул. Годовикова - Фото 6
    Продажа ПСН, м. Алексеевская, ул. Годовикова - Фото 7
    Продажа ПСН, м. Алексеевская, ул. Годовикова - Фото 8
    Продажа ПСН, м. Алексеевская, ул. Годовикова - Фото 9
    общая площадь 156.2м², полезная площадь 156.2м²

    Лот 148279. Предлагается к продаже торговое помещение общей площадью 156,2 кв.м. (Блок 4.1.1.) в ЖК бизнес-класса "iLove" по адресу: Москва, СВАО, р-н Останкинский, ул. Годовикова, 11к4. Новый ЖК из 5-ти корпусов расположен в сердце одного из самых...
    • 156.2 м²
    • 1-й эт.
    62 480 000 Р
    Агентство
    S5Development
    +7 (903) Показать номер
    Посмотреть контакты
    Продажа ПСН, м. Новые черемушки, ул. Херсонская - Фото 1
    Продажа ПСН, м. Новые черемушки, ул. Херсонская - Фото 2
    Продажа ПСН, м. Новые черемушки, ул. Херсонская - Фото 3
    Продажа ПСН, м. Новые черемушки, ул. Херсонская - Фото 4
    Продажа ПСН, м. Новые черемушки, ул. Херсонская - Фото 5
    Продажа ПСН, м. Новые черемушки, ул. Херсонская - Фото 6
    Продажа ПСН, м. Новые черемушки, ул. Херсонская - Фото 7
    Продажа ПСН, м. Новые черемушки, ул. Херсонская - Фото 8
    Продажа ПСН, м. Новые черемушки, ул. Херсонская - Фото 9
    Продажа ПСН, м. Новые черемушки, ул. Херсонская - Фото 10
    Продажа ПСН, м. Новые черемушки, ул. Херсонская - Фото 11
    Продажа ПСН, м. Новые черемушки, ул. Херсонская - Фото 12
    общая площадь 163.3м², полезная площадь 163.3м²

    Лот 144223. К продаже предлагается помещение свободного назначения в ЖК премиум-класса «ONYX Deluxe» по адресу: г. Москва, ЮЗАО, Херсонская улица, 43к5. Ближайшие станции метро: Зюзино – 13 мин. пешком, Калужская – 18 мин. пешком, Новые Черемушки – 4...
    • 163.3 м²
    • 1-й эт.
    62 054 000 Р
    Агентство
    S5Development
    +7 (903) Показать номер
    Посмотреть контакты
    Помещение свободного назначения (777 м) - Фото 1
    Помещение свободного назначения (777 м) - Фото 2
    Продается нежилое помещение, весь этаж 776,4 кв.м. МР Мещерское озеро и Нижегородская Ярмарка. Красная линия. Хорошая парковка. На 1 этаже располагается Мир Охоты
    • 2/2 эт.
    62 000 000 Р
    Агент
    +7 (909) Показать номер
    Посмотреть контакты
    Продажа ПСН, м. Тульская, Холодильный пер. - Фото 1
    Продажа ПСН, м. Тульская, Холодильный пер. - Фото 2
    Продажа ПСН, м. Тульская, Холодильный пер. - Фото 3
    Продажа ПСН, м. Тульская, Холодильный пер. - Фото 4
    Продажа ПСН, м. Тульская, Холодильный пер. - Фото 5
    Продажа ПСН, м. Тульская, Холодильный пер. - Фото 6
    Продажа ПСН, м. Тульская, Холодильный пер. - Фото 7
    Продажа ПСН, м. Тульская, Холодильный пер. - Фото 8
    Продажа ПСН, м. Тульская, Холодильный пер. - Фото 9
    Продажа ПСН, м. Тульская, Холодильный пер. - Фото 10
    Продажа ПСН, м. Тульская, Холодильный пер. - Фото 11
    Продажа ПСН, м. Тульская, Холодильный пер. - Фото 12
    общая площадь 153.3м², полезная площадь 153.3м²

    ЮАО, Даниловский район, 100 метров от метро Тульская! ПСН площадью 153,3 м2 (№8102) расположено в Деловом квартале в стиле Лофт – в ДК «Товарищество Рябовской Мануфактуры», в 3-х минутах пешком от метро Тульская. Помещение на 1-м этаже в 3-х этажном...
    • 153.3 м²
    • 1-й эт.
    62 853 000 Р
    Агент
    +7 (903) Показать номер
    Посмотреть контакты

    Не нашли подходящего объявления?

    Оставьте заявку, и наши риэлторы подберут псн в районе Кирова

    (0)