7 900 000 Р 102 500 $ или 86 770

Информация об помещении

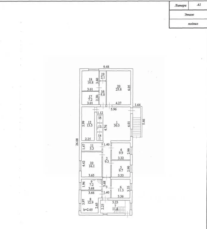
цоколь
Этаж

Состояние и оснащение

Количество этажей
4
Развернуть
Агент
+7 (912) 331-21-28
Начать чат с агентом

Помещение свободного назначения в Кировская область, Киров ул. ...

Арт.Тот случай, когда нет недостатков. Судите сами: Идеальная локация - исторический центр, вблизи улиц Карла Маркса, Свободы, Спасская - Герцена 22/1. Дом индивидуальной постройки, 2011 года, кирпич, огороженная придомовая территория (открытие с телефона), два парковочных места прямо во дворе. Высокий цоколь с окнами. Отдельный вход, сигнализация.Три изолированных кабинета - 15,5 + 12,5 + 8. Три мокрые точки, кондиционер, сан.узел с водонагревателем, мини - кухня для сотрудников, зона ресепшен. Для удобства - домофон заведен прямо в кабинеты, если график сотрудников не совпадает с работой администратора, например. В целом, очень много фишек для комфортной работы и получения высокого дохода. Безукоризненное состояние, и, самое главное, документы - как слеза , все сделано строго под САНПИНу, под мед.услуги. Полностью готовое помещение Сопровождение сделки от показа до ключей.

Читать полностью
    Позвонить Написать
    7 900 000 Р102 500 $ или 86 770
    Агент
    +7 (912) 331-21-28
    Начать чат с агентом
    Похожие предложения
    Помещение свободного назначения в Кировская область, Киров ... - Фото 1
    Помещение свободного назначения в Кировская область, Киров ... - Фото 2
    Продаётся отличное просторное помещение , сделан качественный ремонт , натяжные потолки , на полу линолеум , приличные межкомнатные двери , установлены пластиковые стеклопакеты. Освещение в помещении хорошее , точечные светильники , так же светодиодные...
    • 1/10 эт.
    7 990 000 Р
    Агент
    +7 (919) Показать номер
    Посмотреть контакты
    Помещение свободного назначения в Санкт-Петербург 12-я Васильевского ... - Фото 1
    Помещение свободного назначения в Санкт-Петербург 12-я Васильевского ... - Фото 2
    Помещение на цокольном этаже с отдельным входом со двора, свободная планировка без внутренних перегородок , кухня, с/у, 5 небольших окон, своя парковка, огороженная территория, метро в шаговой доступности. Свободная продажа от физ.лица, собственность...
    • 1/3 эт.
    7 800 000 Р
    Агент
    +7 (980) Показать номер
    Посмотреть контакты
    Помещение свободного назначения в Ленинградская область, Приозерск ул. ... - Фото 1
    Помещение свободного назначения в Ленинградская область, Приозерск ул. ... - Фото 2
    Предлагается к продаже объект недвижимости - помещение для коммерческого использования, расположенный в бизнес центре по адресу: город Приозерск, улица Калинина дом 51.Объект включает в себя: три смежных помещения 11.1+16.5+22 кв.м. с разными кад. номерами...
    • 2/2 эт.
    7 990 000 Р
    Агент
    +7 (981) Показать номер
    Посмотреть контакты
    Помещение свободного назначения в Омская область, Омск просп. ... - Фото 1
    Помещение свободного назначения в Омская область, Омск просп. ... - Фото 2
    Предлагаем к продаже коммерческое помещение с отдельным входом,большими окнами,светлое и теплое.Подходит для реализации любых бизнес проектов,в данный момент используется,как квартирный отелль( 3 номера с собственной кухней,с/у,душевой кабиной) есть арендаторы.Также...
    • -1/14 эт.
    7 950 000 Р
    Агент
    +7 (913) Показать номер
    Посмотреть контакты
    Продажа ПСН, Новодмитриевская, Северский район, ул. Южная - Фото 1
    Продажа ПСН, Новодмитриевская, Северский район, ул. Южная - Фото 2
    Продажа ПСН, Новодмитриевская, Северский район, ул. Южная - Фото 3
    Продажа ПСН, Новодмитриевская, Северский район, ул. Южная - Фото 4
    Продажа ПСН, Новодмитриевская, Северский район, ул. Южная - Фото 5
    Продажа ПСН, Новодмитриевская, Северский район, ул. Южная - Фото 6
    Продажа ПСН, Новодмитриевская, Северский район, ул. Южная - Фото 7
    Продажа ПСН, Новодмитриевская, Северский район, ул. Южная - Фото 8
    Продажа ПСН, Новодмитриевская, Северский район, ул. Южная - Фото 9
    Продажа ПСН, Новодмитриевская, Северский район, ул. Южная - Фото 10
    Продажа ПСН, Новодмитриевская, Северский район, ул. Южная - Фото 11
    Продажа ПСН, Новодмитриевская, Северский район, ул. Южная - Фото 12
    Продажа ПСН, Новодмитриевская, Северский район, ул. Южная - Фото 13
    Продажа ПСН, Новодмитриевская, Северский район, ул. Южная - Фото 14
    Продажа ПСН, Новодмитриевская, Северский район, ул. Южная - Фото 15
    Продажа ПСН, Новодмитриевская, Северский район, ул. Южная - Фото 16
    Продажа ПСН, Новодмитриевская, Северский район, ул. Южная - Фото 17
    Продажа ПСН, Новодмитриевская, Северский район, ул. Южная - Фото 18
    Продажа ПСН, Новодмитриевская, Северский район, ул. Южная - Фото 19
    Продажа ПСН, Новодмитриевская, Северский район, ул. Южная - Фото 20
    общая площадь 100м², полезная площадь 100м²

    Продаю торговую площадь с земельным участком в ст.Новодмитриевская, что в 25 км от Краснодара. ID объекта: 900521
    • 100 м²
    8 000 000 Р
    Агент
    +7 (909) Показать номер
    Агентство
    Эксперт
    Посмотреть контакты

    Не нашли подходящего объявления?

    Оставьте заявку, и наши риэлторы подберут псн в районе Кирова

    (0)