Реализация объекта недвижимости приостановлена

Информация о квартире

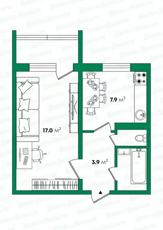
34.0 м2
Площадь
17.0 м2
Жилая
7.0 м2
Кухня
1
Комната
2
Этаж
9
Этажность

Дополнительная информация

Тип дома
панельный
Развернуть

1-к кв. Кировская область, Киров ул. Блюхера, 32 (34.1 м)

В продаже просторная и светлая однокомнатная квартира в центре города Кирова. ПЛАНИРОВКА КВАРТИРЫ 34,1 кв. м ПРЕДУСМАТРИВАЕТ: - Большая комната 17 кв. м. - Кухня правильной квадратной формы 7,9 кв. м - Раздельный санузел. - Просторная прихожая 3,9 кв. м - Застекленная лоджия - 3 кв. м ПРЕИМУЩЕСТВА КВАРТИРЫ: - Прекрасный вариант для жизни, сдачи в аренду или инвестиций - Год постройки дома 1999. - Прекрасный второй этаж. Окна выходят во двор. Без шума и пыли. - Экологически приятный и достаточно тихий микрорайон. - Ухоженный двор, зона отдыха, детская и спортивные площадки. - Все документы готовы к продаже. Один взрослый собственника. Без долгов и обременений. ИНФРАСТРУКТУРА В ШАГОВОЙ ДОСТУПНОСТИ: - Отличная транспортная развязка в любую точку города. До остановки общественного транспорта 400 метров - 4 минуты пешком. - Детские сады 196, 12, 67, 76, 204, 13. - Школа 70, 20, Вятская гуманитарная гимназия. - Продуктовые магазины Пятерочка , Магнит , Центральный рынок. - Детские площадки, спортплощадки. - Студии развития. - Детская и взрослые поликлиники. - Пункты выдачи всех известных маркетплейсов. ПРИДОМОВАЯ ТЕРРИТОРИЯ Облагороженная. Достаточное количество парковочных мест во дворе дома. Ведется круглосуточное видеонаблюдение. Чистый и ухоженный подъезд. Спокойные и приятные соседи. Отсутствие проблем с обеспечением коммунальными услугами — свое ТСЖ. Детские площадки во дворе дома. ПРОСМОТР В ЛЮБОЕ УДОБНОЕ ДЛЯ ВАС ВРЕМЯ. Эксклюзивное право продажи. Полное юридическое сопровождение сделки, помощь в получении ипотечного кредита, сотрудничество со всеми банками нашего города. Работа с материнским капиталом и сертификатами. Торг дополнительно обсуждается при определенных условиях сделки. __________________________________ Агентство недвижимости Дело и Деньги . С нами надежно Нам доверяют, нас рекомендуют

Читать полностью

    Реализация объекта недвижимости приостановлена

    Не нашли подходящего объявления?

    Оставьте заявку, и наши риэлторы подберут квартиру в районе Кирова

    (0)