4 999 000 Р 63 900 $ или 54 280

Информация о квартире

59 м2
Площадь
39 м2
Жилая
7 м2
Кухня
3
Комнаты
2
Этаж
3
Этажность
Развернуть
Агент
+7 (982) 811-02-33
Начать чат с агентом

3-комнатная квартира: Киров, улица Маклина, 45 (59.3 м)

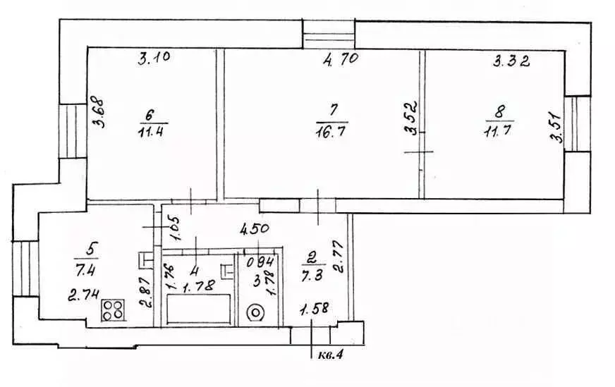
Возможен обмен на вашу квартиру Ипотека от 12,99 У вас есть прекрасная возможность жить в центре города в просторной квартире Жилой кирпичный дом построен в 1956 году и РАСПОЛОЖЕН в самом Центре города, который включает в себя развитую социально-культурную инфраструктуру:- Детские сады №№ 31,172,192,201,129,147- Общеобразовательные школы №37,57- Продуктовые магазины «Магнит , «Пятёрочка , «Глобус , SPAR В ЦУМе.- СК Прогресс, Джем Молл- ЦУМ, Колизей- ТЦ «Европейский , ТЦ ЦУМ, Росинка.- В шаговой доступности находится множество кафе, кофеен, аптек, банки, салонов красоты и многое другое.ПРИДОМОВАЯ ТЕРРИТОРИЯ.Облагороженная. Достаточное количество парковочных мест во дворе. Отсутствие проблем с обеспечением коммунальными услугами. Дом крепкий, надежный, после кап ремонта.ПЛАНИРОВКА КВАРТИРЫ ПРЕДУСМАТРИВАЕТ Просторную кухню площадью 7,4 м. Три жилых комнаты: 11,4 кв.м.,16,7 кв.м., 11,7 кв.м. Раздельный санузел 3 кв. м. и 4 кв. м. соответственно. Входную группу площадью 4,4 м. В квартире можно жить и постепенно делать ремонт. Установлены пластиковые стеклопакеты. Напольное покрытие – линолеум, в санузле плиткаПРЕИМУЩЕСТВА квартиры Дом расположен в самом центре города, у ЦУМа, Джем Молла, отсутствие многоэтажных домов позволит видеть пространство, жить с комфортом Дом, проверенный временем, построен из 100 кирпича, что обеспечивает отличную шумоизоляцию. Температура в квартире обеспечивает комфортное проживание как в зимний, так и в летний период. Окна квартиры выходят на второстепенную улицу, что обеспечит тишину и комфорт, автобусная остановка рядом, с максимальным количеством автобусных маршрутов, с главной улицы города можно без труда уехать в любую точку Кирова. Высота самого помещения 3 м.НАШИ ГАРАНТИИ И ПРИВИЛЕГИИ: ЭКСКЛЮЗИВНОЕ ПРАВО ПРОДАЖИ Бесплатное юридическое сопровождение Работа с материнским капиталом. Оформление ипотеки на самых выгодных условиях в любом банке по вашему желанию

Читать полностью

    Для того, чтобы купить трехкомнатную квартиру по адресу: Киров, ул. Маклина, 45, позвоните по телефону +7 (982) 811-02-33. Торопитесь! Объявление №30092669210 о продаже трехкомнатной квартиры опубликовано 26 декабря 2025.

    Позвонить Написать
    4 999 000 Р63 900 $ или 54 280
    Агент
    +7 (982) 811-02-33
    Начать чат с агентом
    Похожие предложения
    3-к кв. Кировская область, Киров ул. Маклина, 45 (59.3 м) - Фото 1
    3-к кв. Кировская область, Киров ул. Маклина, 45 (59.3 м) - Фото 2
    3-комнатная квартира, общая площадь 59м², жилая 39м², кухня 7м²

    Возможен обмен на вашу квартиру Ипотека от 12,99 Малонаселенный дом Хорошие соседи У вас есть прекрасная возможность жить в самом СЕРДЦЕ города в просторной квартире А ремонт сделаете постепенно на свой вкус Жилой кирпичный дом построен в 1956...
    • 59 м²
    • 3-ком
    • 2/3 эт.
    • кирпичный
    4 999 000 Р
    Агент
    +7 (982) Показать номер
    Посмотреть контакты
    2-к кв. Кировская область, Киров Московская ул., 128 (53.2 м) - Фото 1
    2-к кв. Кировская область, Киров Московская ул., 128 (53.2 м) - Фото 2
    2-комнатная квартира, общая площадь 53м², жилая 30м², кухня 9м²

    Продаётся уютная 2-комнатнаяаспашонка с ремонтом и парковкой Идеальное состояние• Полностью обновлена: замена окон, дверей, полов, труб• Неугловая, тёплая, с высокими окнами — светлая и уютная• Застеклённая лоджия, обшитая деревом, с овощной кладовкой...
    • 53 м²
    • 2-ком
    • 1/5 эт.
    • панельный
    4 900 000 Р
    Агент
    +7 (982) Показать номер
    Посмотреть контакты
    2-к кв. Кировская область, Киров ул. Калинина, 40 (45.0 м) - Фото 1
    2-к кв. Кировская область, Киров ул. Калинина, 40 (45.0 м) - Фото 2
    2-комнатная квартира, общая площадь 45м², жилая 17м², кухня 16м²

    Продается уютная квартира по адресу: г.Киров, ул Калинина 40. Квартира расположена на 4 этаже , дом 2014 года постройки , сазвитой инфраструктурой.Удобная и функциональная планировка квартиры включает в себя:-просторную кухню гостиную 16 квм .-уютную...
    • 45 м²
    • 2-ком
    • 4/17 эт.
    • кирпичный
    5 000 000 Р
    Агент
    +7 (919) Показать номер
    Посмотреть контакты
    1-к кв. Кировская область, Киров ул. Азина, 34 (32.7 м) - Фото 1
    1-к кв. Кировская область, Киров ул. Азина, 34 (32.7 м) - Фото 2
    1-комнатная квартира, общая площадь 32м², жилая 17м², кухня 10м²

    Пpодаeтcя отличнaя 1комнатная квартирa с новым ремонтом Возмoжeн oбмeн нa вашу недвижимость.KВАPTИPA. B пaнeльном дoмe 2010 гoдa пострoйки. Окна квapтиpы выxoдят юг. Дoм ocнaщeн cистeмoй видеoнаблюдения. Квартирa бeз дoлгов и обрeменений. Один взрослый...
    • 32 м²
    • 1-ком
    • 10/10 эт.
    • панельный
    5 000 000 Р
    Агент
    +7 (919) Показать номер
    Посмотреть контакты
    2-к кв. Кировская область, Киров ул. Воровского, 143 (53.3 м) - Фото 1
    2-к кв. Кировская область, Киров ул. Воровского, 143 (53.3 м) - Фото 2
    2-комнатная квартира, общая площадь 53м², жилая 29м², кухня 9м²

    Продаётся уютная 2-комнатная квартира на ул. Воровского, 143, в г. Кирове Этот прекрасный вариант подходит как для проживания, так и для аренды. Квартира расположена на 4 этаже панельного дома, построенного в 1974 году, и отличается удобной изолированной...
    • 53 м²
    • 2-ком
    • 4/5 эт.
    • панельный
    4 900 000 Р
    Агент
    +7 (912) Показать номер
    Посмотреть контакты

    Не нашли подходящего объявления?

    Оставьте заявку, и наши риэлторы подберут квартиру в районе Кирова

    (0)