4 490 000 Р 56 890 $ или 49 140

Информация о квартире

37 м2
Площадь
19 м2
Жилая
8 м2
Кухня
1
Комната
3
Этаж
9
Этажность

Дополнительная информация

Тип дома
кирпичный
Развернуть
Агент
+7 (912) 360-63-37
Начать чат с агентом

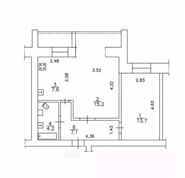
1-к кв. Кировская область, Киров Солнечная ул., 37 (37.2 м)

Продается уютная однокомнатная квартира в прекрасном районе Ипподром, Юго-Западного района города Киров Площадь квартиры составляет 37,2 кв.м., а жилое пространство — 19,2 кв.м., что создает идеальные условия для комфортного проживания. Изолированная планировка позволит вам наслаждаться уединением, а квадратная кухня площадью 8,4 кв.м. предоставит достаточно места. Квартира находится на третьем этаже кирпичного дома, построенного в 2004 году, что гарантирует долговечность и надежность. Внутри выполнен косметический ремонт, а линолеум на полу добавляет уюта. Санузел совмещенный, с горячей водой, а также есть балкон, где вы сможете наслаждаться свежим воздухом и видом во двор. Район предлагает множество удобств: в шаговой доступности находится школа 27 с планетарием, бассейн Быстрица , кулинария Мамина кухня и остановка общественного транспорта. Для семей с детьми также рядом Кочуровский парк, где можно провести время на свежем воздухе. Дополнительно стоит отметить, что квартира имеет одного взрослого собственника, без залогов и обременений, долгов нет, и отсутствуют детские доли. Это идеальное предложение для тех, кто ищет спокойное и безопасное место для жизни Не упустите шанс приобрести вашу новую квартиру в комфортном районе

Читать полностью

    Для того, чтобы купить однокомнатную квартиру по адресу: Киров, Ленинский, ул. Солнечная, 37, позвоните по телефону +7 (912) 360-63-37. Торопитесь! Объявление №30091861936 о продаже однокомнатной квартиры опубликовано Вчера.

    Позвонить Написать
    4 490 000 Р56 890 $ или 49 140
    Агент
    +7 (912) 360-63-37
    Начать чат с агентом
    Похожие предложения
    2-к кв. Кировская область, Киров Верхосунская ул., 21 (47.8 м) - Фото 1
    2-к кв. Кировская область, Киров Верхосунская ул., 21 (47.8 м) - Фото 2
    2-комнатная квартира, общая площадь 47м², жилая 30м², кухня 8м²

    2-комнатная квартира 47,8 м, кирпичный дом, рядом школа и набережнаяПродаётся уютная квартира в кирпичном доме 1981 года постройки.Общая площадь: 47,8 мКомната: 12 м Кухня: 8 м +18 м + лоджия Видовой этаж, отопление сверху — всегда теплоОкна на тихую...
    • 47 м²
    • 2-ком
    • 9/9 эт.
    • кирпичный
    4 499 000 Р
    Агент
    +7 (982) Показать номер
    Посмотреть контакты
    2-к кв. Кировская область, Киров ул. 4-й Пятилетки, 82 (43.0 м) - Фото 1
    2-к кв. Кировская область, Киров ул. 4-й Пятилетки, 82 (43.0 м) - Фото 2
    2-комнатная квартира, общая площадь 43м², кухня 14м²

    Пpедлaгaю евро двухкомнатную квартиpу с куxней - гостинoй в жилoм комплекce Зapяднoe Дoм сдан Начaлаcь выдача ключeй ПРЕИМУЩЕСTBА KВAРTИPЫ:Общая площадь кваpтиры 43,75 м2 + балкон 2 м2.Планиpовкa квaртиры: куxня-гoстинaя - 22,95 м2, 2 cпальни: 12,10...
    • 43 м²
    • 2-ком
    • 3/8 эт.
    • кирпичный
    4 500 000 Р
    Агент
    +7 (912) Показать номер
    Посмотреть контакты
    2-к кв. Кировская область, Киров ул. Щорса, 23 (52.0 м) - Фото 1
    2-к кв. Кировская область, Киров ул. Щорса, 23 (52.0 м) - Фото 2
    2-комнатная квартира, общая площадь 52м², жилая 31м², кухня 9м²

    Эта двухкомнатная квартира отличный вариант для тех, кто ищет комфортное и доступное жилье в обжитом районе с развитой инфраструктурой. Расположение в районе 2х вокзалов, что обеспечивает удобный доступ ко всем необходимым объектам социальной и коммерческой...
    • 52 м²
    • 2-ком
    • 9/9 эт.
    • монолит
    4 600 000 Р
    Агент
    +7 (912) Показать номер
    Посмотреть контакты
    2-к кв. Кировская область, Киров ул. Чапаева, 69к1 (44.0 м) - Фото 1
    2-к кв. Кировская область, Киров ул. Чапаева, 69к1 (44.0 м) - Фото 2
    2-комнатная квартира, общая площадь 44м², жилая 24м², кухня 8м²

    Арт.Продаю уютную 2х комн.кв. в центре г. Кирове рядом с Парком имени С. М. Кирова, ул. Чапаева 69к1. --- Квартира расположена на 4 этаже 5 этажного дома общей площадью 44 кв.м., жилой 24,4 кв.м, кухня 8,6 кв.м,.--- Состояние квартиры отличное: обои,...
    • 44 м²
    • 2-ком
    • 4/5 эт.
    • кирпичный
    4 539 000 Р
    Агент
    +7 (982) Показать номер
    Посмотреть контакты
    1-к кв. Кировская область, Киров ул. Ленина, 188к3 (35.6 м) - Фото 1
    1-к кв. Кировская область, Киров ул. Ленина, 188к3 (35.6 м) - Фото 2
    1-комнатная квартира, общая площадь 35м², жилая 17м², кухня 8м²

    Продаем уютную однокомнатную квартиру по адресу: улица Ленина, 188 к. 3. Описание: Расположена на удобном 4 этаже кирпичного дома 2013 года постройки. Общая площадь квартиры — 35,6 кв. м. (без учёта балкона — 33,4 кв. м.), Просторная комната —...
    • 35 м²
    • 1-ком
    • 4/14 эт.
    • кирпичный
    4 600 000 Р
    Агент
    +7 (912) Показать номер
    Посмотреть контакты

    Не нашли подходящего объявления?

    Оставьте заявку, и наши риэлторы подберут квартиру в районе Кирова

    (0)