12 850 000 Р 158 900 $ или 137 600

Информация о квартире

100 м2
Площадь
61 м2
Жилая
12 м2
Кухня
3
Комнаты
4
Этаж
9
Этажность
Развернуть
Агент
+7 (912) 360-83-96
Начать чат с агентом

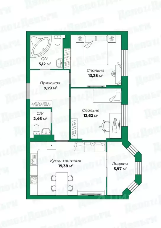
3-комнатная квартира: Киров, Красноармейская улица, 3А (100 м)

Продаётся 3-комнатная квартира 100 м2 в центре, дом внутри квартала Адрес - ул. Красноармейская, 3А Квартира расположена на 4 этаже 9-этажного монолитного дома 2008 года постройки Преимущества квартиры:Квартира-распашонка с окнами на две стороны - юг и север, что позволяет поддерживать оптимальный микроклимат в квартире и снижает затраты на отопление и кондиционированиеДве лоджии могут служить отличным местом для хранения вещей или создания дополнительных зон отдыхаВ стоимость входят кухонный гарнитур и встроенная техника: варочная панель, духовой шкаф, посудомоечная машина; встроенные шкафы - это значительно упростит процесс переездаВ одной из комнат сделан свежий ремонтПридомовая территория и подъезд с видеонаблюдением, что обеспечивает круглосуточный контроль и защиту от нежелательных ситуаций Планировка и характеристики:жилая площадь 61,4 м2кухня-гостиная 28,9 м2жилые комнаты - 28 и 16,7 м2два санузла 3,6 и 2,1 м2две лоджии 1,9 и 1,3 м2высота потолков 2,66 м Инфраструктура: Для образования детей - школа № 16, ВГГ; детские сады № 12,57,204; ВятГУ, МФЮА Для шопинга — ТЦ Крым, ТЦ Максимум, различные продуктовые и промтоварные магазины Для отдыха — Парк им. Гагарина, Центр зимнего отдыха Калинка, множество кафе и ресторанов Юридическая часть: два взрослых собственника, без обременений, документы по квартире прошли юридическую проверку. Рассмотрим все формы оплаты, возможен торг Поможем оформить ипотеку на самых выгодных условиях в любом банке по вашему желанию Квартира идеально подойдёт семьям с детьми - возможность организовать комфортное пространство для каждого члена семьи Свяжитесь с нами прямо сейчас Организуем просмотр в удобное для вас время. Арт.

Читать полностью

    Для того, чтобы купить трехкомнатную квартиру по адресу: Киров, ул. Красноармейская, 3А, позвоните по телефону +7 (912) 360-83-96. Торопитесь! Объявление №30091403353 о продаже трехкомнатной квартиры опубликовано 27 октября 2025.

    Позвонить Написать
    12 850 000 Р158 900 $ или 137 600
    Агент
    +7 (912) 360-83-96
    Начать чат с агентом
    Похожие предложения
    3-к кв. Кировская область, Киров Красноармейская ул., 3А (100.0 м) - Фото 1
    3-к кв. Кировская область, Киров Красноармейская ул., 3А (100.0 м) - Фото 2
    3-комнатная квартира, общая площадь 100м², жилая 61м², кухня 12м²

    Продаётся 3-комнатная квартира 100 м2 в центре, дом внутри кварталаАдрес - ул. Красноармейская, 3АКвартира расположена на 4 этаже 9-этажного монолитного дома 2008 года постройкиПреимущества квартиры:Квартира-распашонка с окнами на две стороны - юг и север,...
    • 100 м²
    • 3-ком
    • 4/9 эт.
    • кирпичный
    12 850 000 Р
    Агент
    +7 (912) Показать номер
    Посмотреть контакты
    2-к кв. Кировская область, Киров Октябрьский просп., 117 (60.6 м) - Фото 1
    2-к кв. Кировская область, Киров Октябрьский просп., 117 (60.6 м) - Фото 2
    2-комнатная квартира, общая площадь 60м², жилая 24м², кухня 22м²

    На продаже евро 3-комнатная квартира в ЖК Алые Паруса на Октябрьском проспекте 117. Общая площадь — 60.6 м, высота потолков 2,7 метра, идеальное сочетание простора и функциональности. Основные особенности: o Просторная кухня-гостиная 22 м —...
    • 60 м²
    • 2-ком
    • 5/21 эт.
    • монолит
    12 500 000 Р
    Агент
    +7 (912) Показать номер
    Посмотреть контакты
    2-к кв. Кировская область, Киров ул. Молодой Гвардии, 9 (76.3 м) - Фото 1
    2-к кв. Кировская область, Киров ул. Молодой Гвардии, 9 (76.3 м) - Фото 2
    2-комнатная квартира, общая площадь 76м², жилая 45м², кухня 25м²

    В продаже эксклюзивная квартира с современными ремонтом, мебелью и техникой в историческом центре города Кирова.Квартира формата евро-2 (кухня-гостиная плюс спальня). Площадь квартиры 76,3 кв. м. плюс балкон 4,2 м., кухня-гостиная 43 м, спальня 15,2 м....
    • 76 м²
    • 2-ком
    • 4/4 эт.
    • кирпичный
    12 990 000 Р
    Агент
    +7 (912) Показать номер
    Посмотреть контакты
    2-к кв. Кировская область, Киров ул. Свободы, 28 (65.14 м) - Фото 1
    2-к кв. Кировская область, Киров ул. Свободы, 28 (65.14 м) - Фото 2
    2-комнатная квартира, общая площадь 65м², жилая 26м², кухня 19м²

    Возможен ОБМЕН на двух-трёхкомнатную квартиру, загородный дом в черновой или чистовой отделке. ЦЕНА НИЖЕ, ЧЕМ У ЗАСТРОЙЩИКА ТОРГ обсуждаем на просмотре В продаже 2к квартира в историческом центре Кирова, в ЖД Булычёв на ул. Свободы д. 28....
    • 65 м²
    • 2-ком
    • 7/17 эт.
    • кирпичный
    12 700 000 Р
    Агент
    +7 (912) Показать номер
    Посмотреть контакты
    3-к кв. Кировская область, Киров ул. Андрея Упита, 5к3 (86.4 м) - Фото 1
    3-к кв. Кировская область, Киров ул. Андрея Упита, 5к3 (86.4 м) - Фото 2
    3-комнатная квартира, общая площадь 86м², жилая 37м², кухня 21м²

    341173 Просторная 3-комнатная квартира с дизайнерским ремонтом в ЖК Вернисаж Идеальное жилье для комфортной жизни вашей семьиПредставляем вашему вниманию великолепную трехкомнатную квартиру с продуманной планировкой и премиальным ремонтом. Общая площадь...
    • 86 м²
    • 3-ком
    • 11/15 эт.
    • кирпичный
    14 000 000 Р
    Агент
    +7 (981) Показать номер
    Посмотреть контакты

    Не нашли подходящего объявления?

    Оставьте заявку, и наши риэлторы подберут квартиру в районе Кирова

    (0)