Россия, Кировская область, Киров, улица Дмитрия Козулева, 9к1

Реализация объекта недвижимости приостановлена

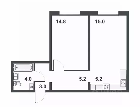
Информация о квартире

46.0 м2
Площадь
14.0 м2
Жилая
18.0 м2
Кухня
1
Комната
5
Этаж
8
Этажность
Развернуть

1-комнатная квартира: Киров, улица Дмитрия Козулева, 9к1 (46 м)

Продается 1-комнатная квартира в 3 км от Зубаревского леса, площадью 46.00 кв. м. Квартира находится в жилом комплексе комфорт-класса ZNAK от девелопера Железно . В жилом комплексе воплощена концепция «15-минутного города . Все необходимые объекты: школа, детский сад, кафе, магазины и собственный парк, площадью более 0,5 Га — находятся в пешей доступности. В городе будущего возводятся кирпичные дома высотой от 4 до 8 этажей. Облик проекта разработала московская студия Алексея Иванова. Такое архитектурное решение обеспечивает комфортное проживание — жители могут наслаждаться спокойной атмосферой и дружелюбным соседским окружением, где все знают друг друга. Каждый двор имеет уникальное наполнение: арт-объекты, релакс-зоны для взрослых и многофункциональные нейродинамические площадки для детей разных возрастов. Отдельно располагаются места для спокойного отдыха, паркинги и лужайки для выгула собак. Преимущества: - Система “Умный дом”, управление домом через мобильное приложение «Мажордом ; - Умное освещение в подъездах - включается, когда в холл заходят люди; - Специальные помещения для удобного и безопасного хранения колясок, велосипедов и самокатов; - Трехступенчатая система грязезащиты на входе в подъезд - подошва обуви очищается постепенно и незаметно при проходе через три зоны, которые располагаются в четко продуманной последовательности; - Трехуровневое освещение и архитектурная подсветка преображает ночной облик всего комплекса. Успейте приобрести квартиру на выгодных условиях Чтобы узнать подробности, обращайтесь за консультацией по телефону.

Читать полностью

    Реализация объекта недвижимости приостановлена

    Не нашли подходящего объявления?

    Оставьте заявку, и наши риэлторы подберут квартиру в новостройке в районе Кирова

    (0)