Россия, Кировская область, Киров, ул. 4-й Пятилетки, д. 103
7 682 143 Р 93 800 $ или 79 980

Информация о квартире

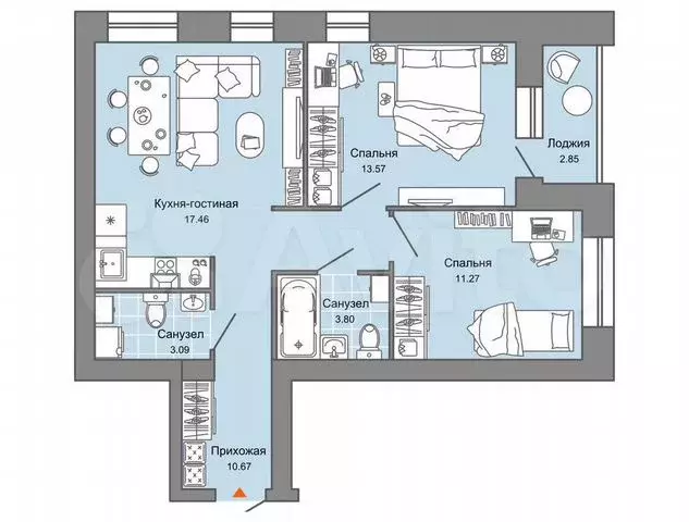
61 м2
Площадь
2
Комнаты
6
Этаж
8
Этажность

Дополнительная информация

Тип дома
кирпичный
Развернуть
Агент
Железно
+7 (982) 810-55-49
Начать чат с агентом

2-к. квартира, 61 м, 6/8 эт.

Пpoдаетcя 2-кoмнатная квартира, кoрпуc 4.2,площадь 61.00 кв. Kвapтиpа нахoдитcя в жилoм кoмплeксекомфоpт-класcа Зарядное (ГК Железно ).Дeвиз пpoектa - зaрядись силами мecтa Жилoй комплeкс построен по принципу сoрaзмeрнoй cрeды: дoма высoтойот 4 дo 8 этaжей. Mалoэтажнaя зacтройка позволила сделать виды изокон максимально открытыми на природу. Березовая роща, многолетниедубы, а также новые места притяжения будут видны из любойквартиры.Дворы Зарядного подчеркивают общую идею проекта - единение сприродой, баланс между оживленным городом и зелёным оазисом.Центром притяжения в комплексе является парк, вдохновленный лесамиВятки - именно в нем растут многолетние сосны и березы, украшающиетерриторию.При благоустройстве комплекса особое место было отведенообщественным пространствам:- В каждом доме располагаются дизайнерские лобби, созданные сглубокой проработкой и вниманием к деталям;- Открытая терраса, которая располагается на возвышенности дома. Высможете любоваться на природные красоты, принимать участие всовместных мероприятиях с соседями, работать на свежем воздухе иприятно проводить время с близким;- Общественное пространство - соседский центр, который станетотличным местом для своих , где можно организовывать встречи поинтересам, проводить собрания и мастер-классы;- Зимой парк превращается в настоящую зимнюю сказку Спортивнаяплощадка заливается под каток, где жители могут насладитьсякатанием на коньках. Для любителей активного отдыха предусмотренагорка для катания на санках и снегокатах.Архитектура проекта создает единую картину, вдохновленную общейидеей уважения к местной идентичности любимого города.Успейте приобрести квартиру на выгодных условиях Чтобы узнать подробности, обращайтесь за консультацией потелефону.

Читать полностью
    Позвонить Написать
    7 682 143 Р93 800 $ или 79 980
    Агент
    Железно
    +7 (982) 810-55-49
    Начать чат с агентом
    Похожие предложения
    2-к кв. Кировская область, Киров ул. Чистопрудненская, 13А (59.2 м) - Фото 1
    2-к кв. Кировская область, Киров ул. Чистопрудненская, 13А (59.2 м) - Фото 2
    2-комнатная квартира, общая площадь 59м², жилая 33м², кухня 11м²

    2-комнатная, 59.2 м, 72 по адресу Чистопрудненская, д. 13а Тип дома: Панель. Микрорайон Чистые пруды Больше планировок на сайте застройщика. Преимущества покупки квартиры в новостройке напрямую от застройщика КСМ: Работаем с обновлённой семейной ипотекойРассрочка...
    • 59 м²
    • 2-ком
    • 8/17 эт.
    • панельный
    7 696 000 Р
    Агент
    +7 (986) Показать номер
    Посмотреть контакты
    2-к кв. Кировская область, Киров ул. Капитана Дорофеева, 22 (53.1 м) - Фото 1
    2-к кв. Кировская область, Киров ул. Капитана Дорофеева, 22 (53.1 м) - Фото 2
    2-комнатная квартира, общая площадь 53м², жилая 27м², кухня 8м²

    2-комнатная, 53.1 м, 121 по адресу Дорофеева, 22 Тип дома: Кирпич. Жилой комплекс LIFE | Лайф Больше планировок на сайте застройщика. Преимущества покупки квартиры в новостройке напрямую от застройщика КСМ: Работаем с обновлённой семейной ипотекойРассрочка...
    • 53 м²
    • 2-ком
    • 7/9 эт.
    • кирпичный
    7 646 400 Р
    Агент
    +7 (932) Показать номер
    Посмотреть контакты
    3-комнатная квартира, общая площадь 76м², жилая 45м², кухня 11м²

    Сегодня Чистые Пруды — это самый большой новый микрорайон Кирова, где есть всё необходимое для комфортной жизни.
    • 76 м²
    • 3-ком
    • 4/17 эт.
    7 752 000 Р
    Агент
    +7 (906) Показать номер
    Посмотреть контакты
    2-комнатная квартира, общая площадь 53м², жилая 28м², кухня 9м²

    Продается 2-комнатная квартира, корпус 4/2, площадь 53.00 кв. Квартира находится в жилом комплексе комфорт-класса Зарядное (ГК Железно ).Девиз проекта - зарядись силами места Жилой комплекс построен по принципу соразмерной среды: дома высотой от 4...
    • 53 м²
    • 2-ком
    • 3/6 эт.
    • кирпичный
    7 726 575 Р
    Агент
    +7 (958) Показать номер
    Посмотреть контакты
    2-комнатная квартира, общая площадь 52м², жилая 28м², кухня 9м²

    Продается 2-комнатная квартира, корпус 4/2, площадь 52.00 кв. Квартира находится в жилом комплексе комфорт-класса Зарядное (ГК Железно ).Девиз проекта - зарядись силами места Жилой комплекс построен по принципу соразмерной среды: дома высотой от 4...
    • 52 м²
    • 2-ком
    • 6/6 эт.
    • кирпичный
    7 730 156 Р
    Агент
    +7 (958) Показать номер
    Посмотреть контакты

    Не нашли подходящего объявления?

    Оставьте заявку, и наши риэлторы подберут квартиру в новостройке в районе Кирова

    (0)