Россия, Кировская область, Киров, Чистопрудненская улица, 13А

Реализация объекта недвижимости приостановлена

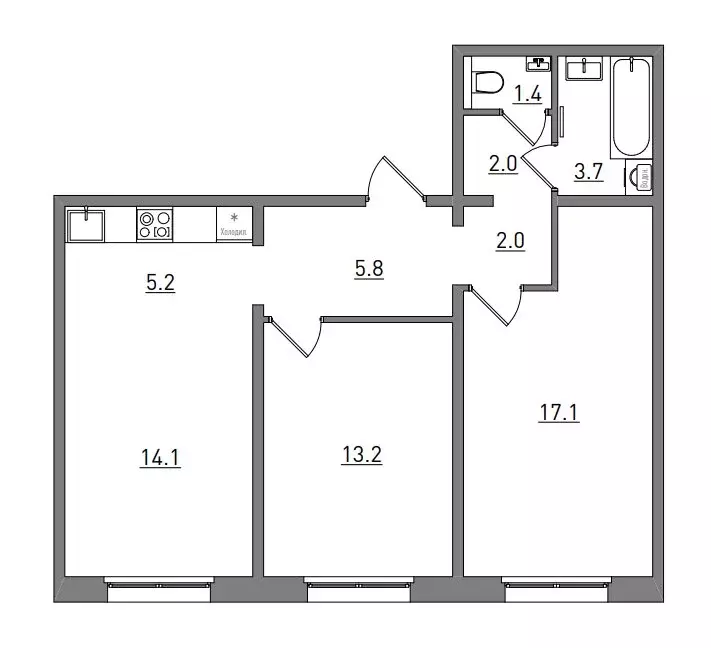
Информация о квартире

64.0 м2
Площадь
44.0 м2
Жилая
5.0 м2
Кухня
3
Комнаты
3
Этаж
17
Этажность
Развернуть

3-комнатная квартира: Киров, Чистопрудненская улица, 13А (64.5 м)

Сегодня Чистые Пруды — это самый большой новый микрорайон Кирова, где есть всё необходимое для комфортной жизни.

Читать полностью

    Реализация объекта недвижимости приостановлена

    Не нашли подходящего объявления?

    Оставьте заявку, и наши риэлторы подберут квартиру в новостройке в районе Кирова

    (0)